Quần thể Marina Ecopark là bước tiếp nối ấn tượng sau thành công của các khu biệt thự Vườn Tùng, Vườn Mai và Park River, đồng thời kế thừa tinh hoa phát triển sản phẩm của toàn khu đô thị Ecopark. Được thiết kế theo phong cách kiến trúc hiện đại, Marina Ecopark chú trọng không gian mở, tối đa hóa sự giao hòa với thiên nhiên và hướng trọn tầm nhìn ra mặt hồ Aqua Bay rộng lớn.

Khu đô thị bao gồm biệt thự song lập – đơn lập và nhà phố thương mại, bố trí thông minh dọc các tuyến đường lớn và ven hồ, tạo nên nhịp sống sôi động, năng động và đầy tiềm năng kinh doanh. Ở vị trí trung tâm, Clubhouse Marina cùng quảng trường Marina Square mang đến không gian sinh hoạt cộng đồng đẳng cấp, tầm nhìn khoáng đạt, là biểu tượng của sự sôi động tại Aqua Bay.

Đặc biệt, Marina Waterfront Residences được ví như “viên ngọc quý” của Aqua Bay, vừa sở hữu giá trị ở thực vượt trội, vừa kiến tạo cộng đồng cư dân văn minh, trẻ trung và giàu sức sống – trở thành tâm điểm đáng sống bậc nhất tại Ecopark. Bên cạnh đó, khu nhà phố Marina Thủy Nguyên với lợi thế mặt đường kinh doanh lớn, gần Westbay đông cư dân và liền kề quảng trường Marina Arc càng làm hoàn chỉnh bức tranh thương mại – sinh thái đẳng cấp tại nơi đây.
TỔNG QUAN BIỆT THỰ MARINA
-
Tên dự án: Biệt thự Marina Ecopark
-
Quy mô: 9,2 ha
-
Loại hình phát triển: Biệt thự song lập & biệt thự đơn lập
-
Tổng số căn: 189 căn
-
Chiều cao xây dựng: 3,5 tầng
-
Số phòng ngủ: 3–4 phòng
Biệt thự Song lập
-
Số lượng: 64 căn
-
Diện tích điển hình: 189 – 207 – 215 – 230 – 250 – 261 – 302 m²
Biệt thự Đơn lập
-
Số lượng: 11 căn
-
Diện tích điển hình:
300 – 306 – 317 – 328 – 361 – 406 – 411 – 429 – 458 – 480 – 706 m²
VỊ TRÍ KHU BIỆT THỰ MARINA – ECOPARK
Nằm tại phân khu Aqua Bay của Khu đô thị sinh thái Ecopark, Marina Ecopark được định hình là quần thể biệt thự – nhà phố cao cấp với không gian sống xanh chuẩn mực, mang đến phong cách sống đẳng cấp cho cư dân hiện đại. Sở hữu vị trí chiến lược tại khu Thủy Nguyên, nơi đây không chỉ là điểm an cư lý tưởng mà còn là lựa chọn thông minh cho những khách hàng tìm kiếm môi trường sống chất lượng cùng giá trị đầu tư bền vững.

Khu nhà phố Thủy Nguyên cùng hệ thống biệt thự – nhà phố Marina hiện là khu vực sôi động bậc nhất Ecopark, thuộc giai đoạn 2 phát triển đô thị, nằm ngay cạnh khu căn hộ Westbay, gần hồ Aqua Bay và liền kề khu nhà phố Thủy Trúc đang mở bán.
Cư dân tại đây được hưởng trọn hệ tiện ích hoàn thiện như:
-
Trung tâm thể thao quy mô 3ha
-
Trường liên cấp Edison
-
Học viện golf EPGA tiêu chuẩn quốc tế
Nhà phố Thủy Nguyên gồm 208 căn nhà phố 4 tầng, thiết kế cực kỳ hợp lý:
-
Tầng 1: bố trí kinh doanh – dịch vụ
-
Tầng 2, 3, 4: không gian sinh hoạt gia đình

Biệt thự và nhà phố Marina Ecopark đang là tâm điểm nhộn nhịp nhất Ecopark, sở hữu lợi thế độc tôn:
-
Nằm tại giai đoạn 2 phân khu Aqua Bay District
-
Đối diện khu căn hộ Westbay cư dân đông đúc
-
Liền kề vịnh hồ Aqua Bay & trục quảng trường Marina Arc
-
Gần cụm 7 tòa chung cư Aqua – mật độ dân cư cao
-
Đối diện khu nhà phố Thủy Nguyên – tăng sức sống thương mại
Không chỉ mang đến nhịp sống năng động, Marina Ecopark còn mở ra tiềm năng kinh doanh vượt trội với hệ thống nhà phố – biệt thự song lập thương mại mặt đường lớn, phù hợp vừa ở vừa khai thác kinh doanh.
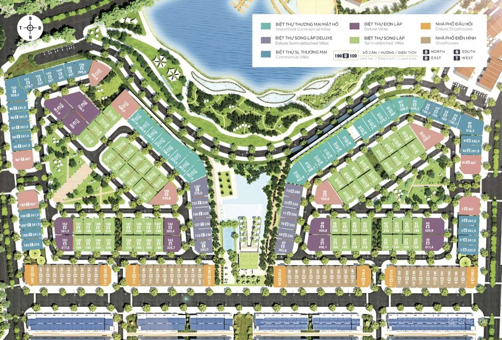
Mặt Bằng Khu Biệt Thự & Nhà Phố Marina Ecopark
Marina Ecopark là quần thể biệt thự và nhà phố ven hồ cao cấp, sở hữu thiết kế hiện đại, không gian sống chan hòa thiên nhiên cùng tiềm năng khai thác kinh doanh vượt trội. Tại đây, cư dân được tận hưởng đời sống chuẩn mực trong khi các nhà đầu tư sở hữu cơ hội sinh lời bền vững nhờ vị trí trung tâm sôi động nhất Aqua Bay.

Biệt Thự Song Lập Điển Hình
Biệt thự được bố trí liên kết cùng hệ thống không gian xanh cộng đồng, đối diện Marina Zen Club và tận hưởng sự riêng tư với khoảng lùi phía trước & bên hông nhà.
-
Số lượng: 76 căn
-
Số tầng: 3 tầng
-
Diện tích đất: 189 – 302m²
-
Diện tích xây dựng: ~97 – 107m²
-
Tổng diện tích sàn: ~300m²
-
Thiết kế: 4 phòng ngủ, 2 phòng đa năng, phòng khách – ăn, 5 WC, bếp hoàn thiện cơ bản
-
Ưu điểm nổi bật: diện tích hợp lý, kết nối thiên nhiên, riêng tư tối đa
-
Bàn giao: Xây thô – hoàn thiện mặt ngoài
Biệt Thự Song Lập Thương Mại
-
Số lượng: 22 căn
-
Số tầng: 4 tầng
-
Diện tích đất: 218 – 457m²
-
Diện tích xây dựng: 136m²
-
Tổng sàn: 470m²
-
Không gian kinh doanh:
-
Tầng 1: 59m²
-
Tầng 2: 74m²
-
-
Thiết kế: 3 phòng ngủ, phòng đa năng, phòng khách, bếp – ăn, kho, giặt, 5 WC, sân thượng
-
Ưu điểm nổi bật: mặt tiền lớn, nằm trên trục sôi động, cực kỳ tiềm năng kinh doanh
-
Bàn giao: Xây thô – hoàn thiện mặt ngoài
BIỆT THỰ ĐƠN LẬP MARINA
-
Số lượng: 14 căn (trong đó chỉ khoảng 11 căn điển hình)
-
Số tầng: 3 tầng
-
Diện tích đất: 300 – 700m²
-
Diện tích xây dựng: ~126 – 148m²
-
Tổng diện tích sàn: ~413 – 420m²
-
Thiết kế: 5 phòng ngủ, 2 phòng đa năng, phòng khách – ăn, 6 WC, sân thượng rộng, sảnh 8,7m²
-
Ưu điểm: diện tích lớn, vị trí đắc địa, tầm nhìn tuyệt đẹp, siêu giới hạn
-
Bàn giao: Xây thô – hoàn thiện mặt ngoài
NHÀ PHỐ MARINA
- Số lượng: 38 căn
-
Số tầng: 4 tầng
-
Mặt tiền: 7,5m
-
Diện tích đất: ~180m²
-
Tổng sàn: ~542m²
-
Công năng: 4PN, 2 phòng đa năng, SHC, phòng thờ, phòng giúp việc, 7 WC, khu kinh doanh tầng 1 96m²
-
Ưu điểm: mặt tiền rộng, đối diện mặt nước & Thủy Nguyên, vừa ở – vừa thương mại
Nhà Phố Thương Mại Đầu Hồi
-
Số lượng: 8 căn
-
Số tầng: 4,5 tầng
-
Mặt tiền: 12m
-
Diện tích đất: 273 – 377m²
-
Tổng sàn: ~741m²
-
Công năng siêu lớn – tối ưu kinh doanh
-
Vị trí: trục trung tâm sầm uất nhất Ecopark
-
Giá tham khảo: từ 60 tỷ
-
Bàn giao: Xây thô – hoàn thiện mặt ngoài
bảng giá biệt thự marina - ecopark
BẢNG GIÁ THAM KHẢO – MARINA ECOPARK (Thị trường thứ cấp 2025)
| Loại sản phẩm | Diện tích điển hình | Giá tham khảo (tỷ VND) | Ghi chú |
|---|---|---|---|
| Biệt thự song lập Marina (điển hình) | 189–302 m² | ~35 – 55 tỷ | Giá thấp nhất thị trường từ các tin đăng bán |
| Biệt thự song lập Marina (góc đẹp view) | ~240 m² | ~55 – 66 tỷ | Căn góc/ vị trí đẹp |
| Biệt thự song lập thương mại Marina | 218–457 m² | ~40 – 55+ tỷ | Tập trung vào mặt đường kinh doanh |
| Biệt thự đơn lập Marina | 300–700 m² | ~50 – 95+ tỷ | Căn lớn, vị trí đẹp lộ giới chính |
| Nhà phố Marina (tiêu chuẩn) | ~180 m² | ~35 – 45 tỷ | Option ở kiêm kinh doanh |
| Nhà phố Thủy Nguyên (tiêu chuẩn) | ~100 m² | ~18 – 25+ tỷ | Giá thị trường khu Thủy Nguyên |
| Nhà phố Thủy Nguyên (nhà vườn/ lớn) | ~200 m² | ~30 – 50+ tỷ | Giá biến động tùy vị trí |
| Nhà phố thương mại đầu hồi (Marina) | 273–377 m² | ~60 tỷ+ | Mặt tiền lớn – sầm uất nhất |
-
Giá bán trong bảng là giá chuyển nhượng trên thị trường thứ cấp, thể hiện mức giá mà các chủ nhà đang chào bán – giá cuối cùng có thể cao hoặc thấp hơn tùy vị trí, hoàn thiện, view hồ, mặt đường, hướng nhà…
-
Các sản phẩm vị trí góc, view cảnh quan đẹp, hoặc hoàn thiện nội thất cao cấp thường có giá cao hơn giá chuẩn listed ở bảng trên.
-
Nhà phố Thủy Nguyên & Marina là những dòng nhà vừa ở vừa kinh doanh nên mức giá có biên độ rộng theo nhu cầu thị trường.




